Project Team
- Centerbrook Architects & Planners – Architect
- Cavanaugh Tocci Associates – Acoustic & Audio Visual Consultant
- Leavitt Associates – Building Envelope Consultant
- Langan Engineering – Civil Engineer
- Philip R. Sherman – Code Consultant
- Arkaspecs – Door Hardware Consultant
- Sterling Elevator Consultants – Elevator Consultant
- Reitch + Petch – Exhibit Design
- Northern Designs – Irrigation Consultant
- James Corner Field Operations – Landscape Architect
- Cline Bettridge Bernstein – Lighting Designer, Building
- Lightswitch – Lighting Designer, Exhibit Design
- Arup – MEP, FP, IT, Lighting, & Security Engineer
- Strong Cohen – Signage Consultant
- RMF Engineering – Site Steam Engineer
- Kalin Associates – Specification Writer
- Gilzanz Murray Steficek – Structural Engineer
Project Contributions
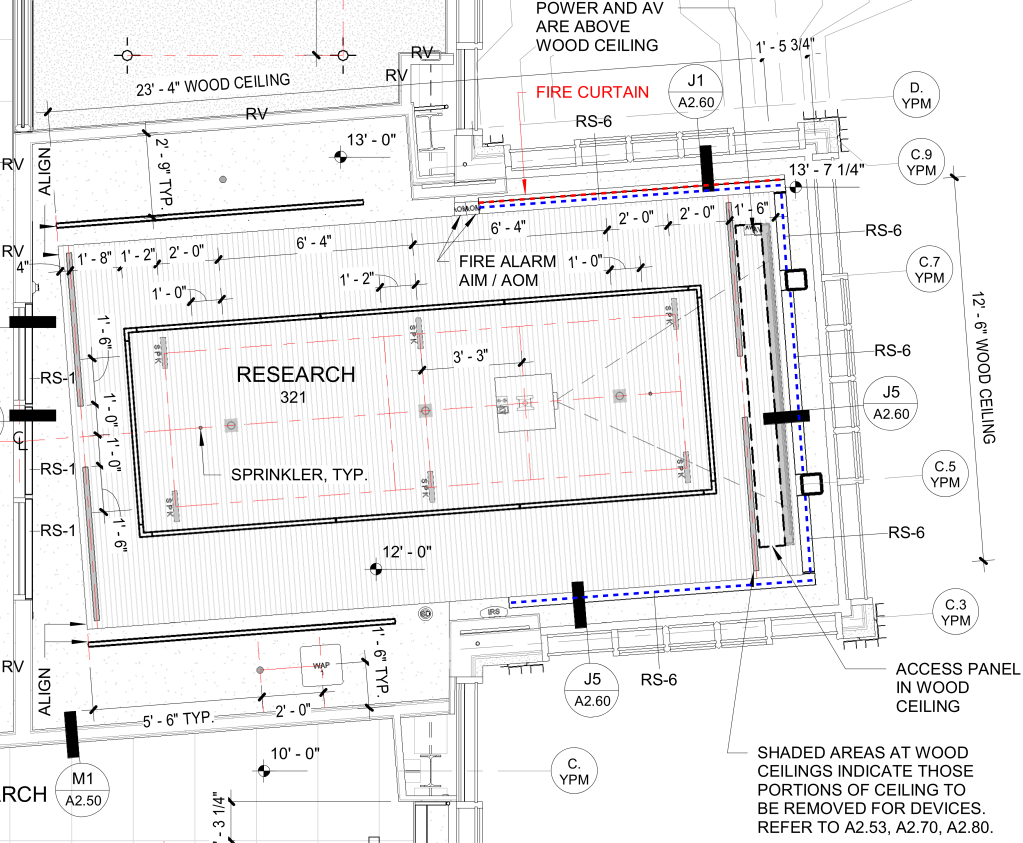
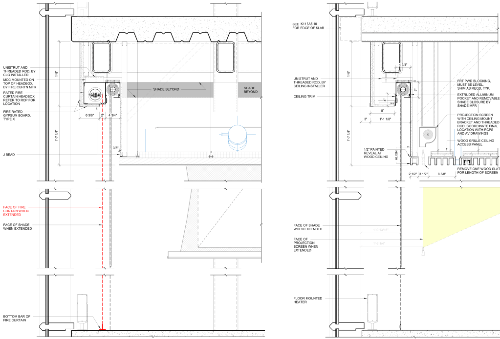
My role followed ceilings, lighting, window shades, and MEP coordination through Design and Construction. This included:
During Design:
- Developed Ceiling Plans and Details;
- Interior Elevations and Glazing Details; and
- Renderings and Video Animation with other team members
- Built a full scale ceiling mockup
- Led product research during Value Engineering
- Located 10,725 devices, fixtures, and diffusers
During Construction:
- Reviewed 60 Submittals
- Responded to RFIs and updated Drawings as needed
- Prepared Field Reports for general progress and MEP rough-in to document where devices were installed in the wrong location
1. Renderings












https://vimeo.com/centerbrook/review/362634182/924d61234c
2. Ceiling and Light Track Study & Mockup






3. Native American Gallery Ceiling




4. Lighting







5. Window Shades








6. Device Coordination






7. Mechanical Diffusers






