Project Team
- Centerbrook Architects & Planners – Architect
- BVH Integrated Services – MEP Engineer
- Girard & Company – Structural Engineer
- Philip R. Sherman – Code Consultant
- Ricca Design Studios – Food Service Consultant
Project Contributions
Contributions included assisting the Principal and Project Manager in developing drawings and researching products.
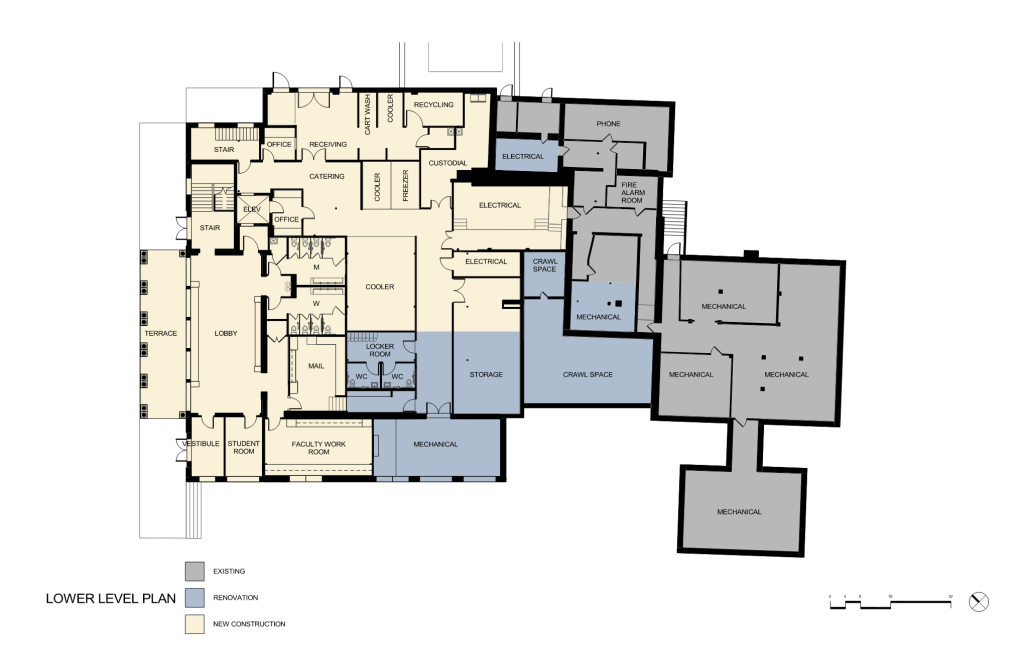
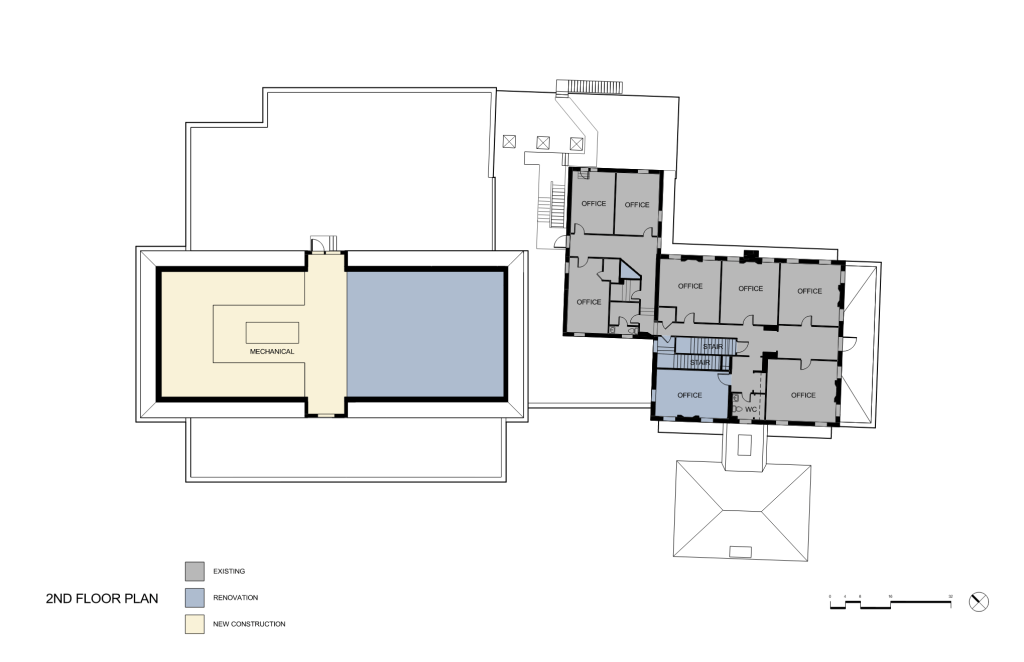
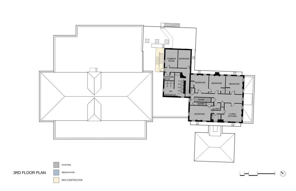
- Presentation Floor Plans
- Exterior Elevations
- Mock Up Details
- Flashing Details
- Masonry Sill Profiles
- Door Details: Fire Rated
- Operable, Historic Shutter Details
- Window Details: Casement, Single Hung, Fixed, & Fire Rated
- Storefront Details
- Louver Details




















